
鉄骨構造の雨樋は、建物の屋根排水システムの重要なコンポーネントです。その主な機能は、屋根から雨水を集めて垂直パイプに導き、屋外の排水システムに排出して、雨が壁を直接侵食したり基礎を浸したりするのを防ぐことです。 Liweiyuan の製品設計と設置は、高強度と軽量を特徴としており、スムーズな排水と優れた耐久性を保証します。
鉄骨構造の雨樋は、建物の屋根排水システムの重要なコンポーネントです。その主な機能は、屋根から雨水を集めて垂直パイプに導き、屋外の排水システムに排出して、雨が壁を直接侵食したり基礎を浸したりするのを防ぐことです。 Liweiyuan の製品設計と設置は、高強度と軽量を特徴としており、スムーズな排水と優れた耐久性を保証します。
Liweiyuanの鋼構造雨樋は、耐食性と耐衝撃性の材料で作られています。
当社の製品は溶融亜鉛メッキを施しているため、耐食性に優れ、低コストで長寿命です。厚さは 1.5 ~ 2.5 mm で用意されており、ほとんどの用途に適しています。
この製品はステンレス鋼で作られており、耐食性があり、海岸沿いや湿気の多い環境に特に適しています。厚さは 1.0 ~ 2.0 mm で入手可能で、価格は高くなりますが、耐用年数が長くなります。
当社のカラーコーティング鋼製品は、亜鉛メッキ鋼をベースとし、耐食性と装飾効果の両方を目的として、ポリエステルやフルオロカーボンなどの耐候性コーティングでコーティングされています。厚さは1.2~2.0mmで、高い美観が要求される建物に適しています。
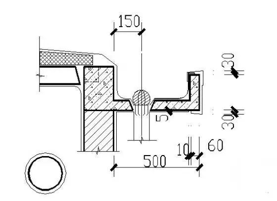
鉄骨造雨樋の構造形状は、屋根の傾斜や軒のデザインに合わせる必要があります。一般的なタイプには、U 字型と V 字型があります。インストールプロセスは次のとおりです。
当社の鉄骨造雨樋は、アングル鋼製雨樋ブラケットを使用して鉄骨造の軒梁や母屋に固定します。ブラケットの間隔は 600 ~ 1000 mm で、側溝全体に応力が均一に分散されます。
完成した雨樋は事前にサイズ調整され、コネクタまたは溶接を使用して現場で接続されます。雨樋と屋根デッキの接合部にはシーリング材が必要です。
屋根デッキの上に水切りを設置することができます。雨樋の下端は屋根デッキの下に配置し、シーラントで密閉する必要があります。主に雨水ライザーへの接続のために、排水穴を側溝の底に設ける必要があります。
当社の鋼製雨樋の製造工程は、図面寸法に合わせて切断、曲げ、塗装、完成品検査、梱包、出荷までを行っております。 Liweiyuanの鋼構造の雨樋は、耐食性、スムーズな排水、耐久性を確保するように設計および設置されており、効率的な排水を保証します。